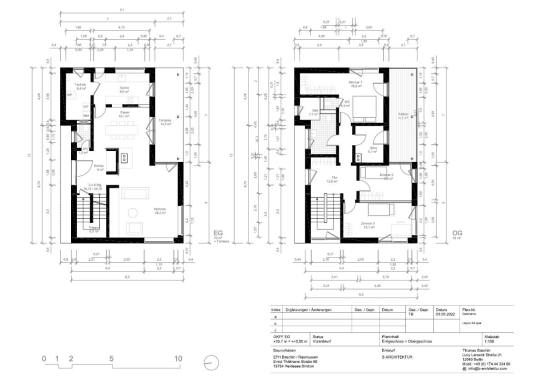
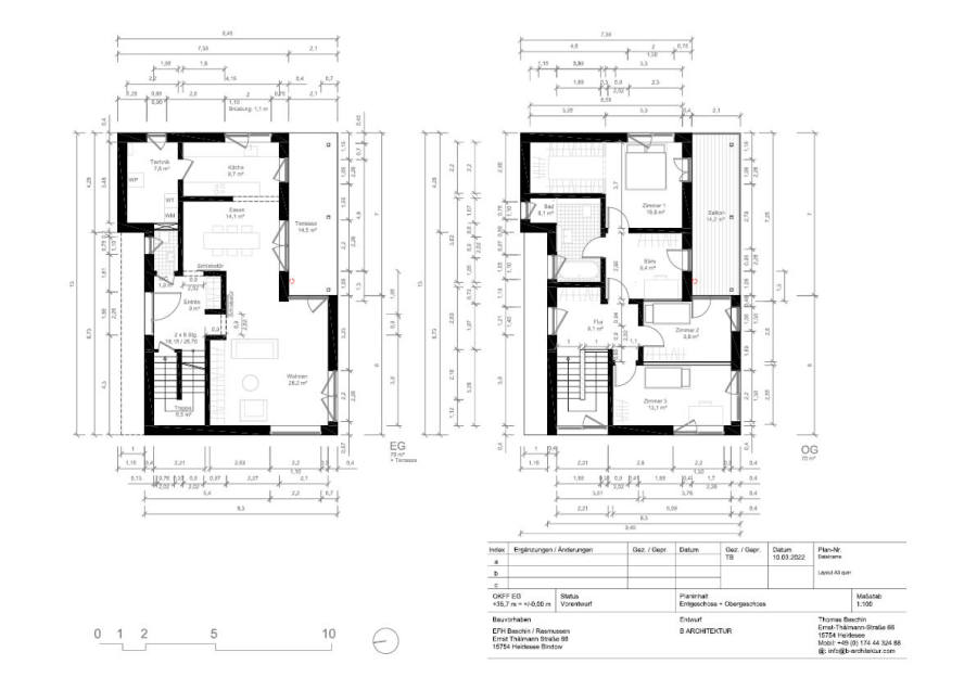
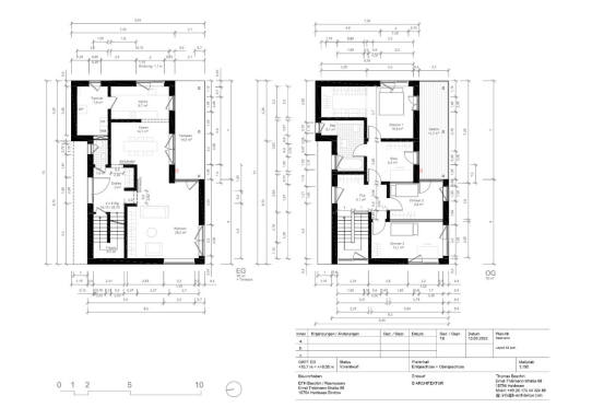
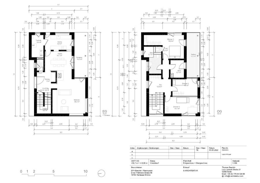
Grundrissentwicklung

 

 

 

 

 

 

 

 

 

 

 

 

 

 

 

 

 

 

 

 

 

 

 

 

 

 

 

 

 

 

 

 

 

 

Im Rahmen der Projektentwicklung wurden verschiedene Grundrissvarianten entwickelt und fortgeführt - zwei ausgewählte Beispiele sind hier dargestellt. Das Konzept vereint zeitgemäßes Design mit funktionaler Raumaufteilung und schafft ein komfortables, auf die Bewohner zugeschnittenes Zuhause.

 

 

 

 

Druckversion | Sitemap
© 2025 B Architektur. Alle Rechte vorbehalten.